Casa Luz. Vivienda Unifamiliar en Cilleros.
···
Documentación técnica · Technical documentation
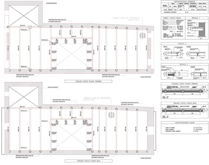
Plantas de estructura de los forjados.
Sección transversal.
Croquis pasarela y detalle de los forjados escalonados.
···
Proceso de construcción · Construction process
Levantamiento de planos del estado previo.
Estado previo de los forjados.
Se vacía el espacio interior eliminando los forjados existentes. Únicamente se deja la estructura principal para evitar el colapso de las medianeras de tapial.
Detalle de la composición de las medianeras dónde posteriormente se fijarán los nuevos perfiles metálicos del entramado de los forjados.
Suministro y colocación de la estructura. Rodeando el patio se construyen cuatro forjados escalonados a distintos niveles. Estos forjados están formados por una estructura de perfiles HEB100 en la parte central y UPN140 en el borde del patio. Los perfiles se colocan empotrados 15cm. directamente en las medianeras de tapial existentes y posteriormente se macizan con hormigón.
Colocación del machihembrado cerámico entre los perfiles que forman el entramado del forjado.
Preparación del mallazo #1D5c/15×30 del armado de la capa de compresión hormigón 5cm.
Los perfiles del perímetro del patio son de mayor tamaño que los perfiles centrales. En perímetro se ha optado por UPN140 para rematar la totalidad del canto del forjado encarado al patio. Desde esta vista se puede apreciar cómo el forjado está escalonado y los perfiles quedan empotrados en las medianeras de tapial.
El proceso de construcción del forjado se finaliza con la capa de compresión de hormigón en la cara superior. Los perfiles intermedios HEB100 que sostienen el machihembrado quedan ocultos desde la cara superior y visibles desde la cara inferior, mientras que los perfiles de borde del patio UPN140 quedan vistos.
Muestra de los pies que sujetarán la pasarela de entramado metálico situada en el patio. Estos pies son de tres medidas distintas debido a que unifican la pasarela a una única cota aunque está fijada al forjado escalonado.
Colocación de los pies metálicos de la pasarela exterior que bordea el patio central.
Colocación del entramado metálico.
Acabado pintado en blanco de la estructura metálica de forma que contraste con el tono rojizo de la cerámica.
Vista interior.
···
Créditos · Credits
·
Casa Luz. Vivienda Unifamiliar en Cilleros | ARQUITECTURA-G
·

Proyecto y Dirección de Obra · Design and constraction managemet:
·
Constructora · Contractor:
Construcciones Alsan
·
Promotor · Client:
Privado · Private
·
Fotografías · Pictures:






