Reforma de una vivienda en el Barrio Gótico de Barcelona
© José Hevia
···
Documentación técnica · Technical documentation
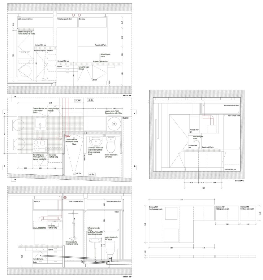
Planta, sección y alzados de detalle.
···
Proceso de construcción · Construction process
Una de las soluciones para la reforma fue concentrar las piezas húmedas –originalmente en la fachada trasera- en el centro de la vivienda, formando un módulo central que libera las fachadas para las estancias y que articula toda la vivienda. Esta pieza central se construye en ladrillo hueco cerámico de gran formato.
En las paredes de ladrillo hueco cerámico de gran formato se realizan las regatas de paso de las instalaciones de agua y electricidad para cada una de las piezas que compondrán el baño y la cocina.
En la parte superior del volumen se montan los marcos de las carpinterías y se instalan los conductos de extracción del baño y el conducto de humos de la campana extractora de la cocina.
La encimera de la cocina y las repisas superiores de los armarios de almacenaje se realizan con tableros de MDF hidrófugo para revestir.
Los muebles y armarios de almacenaje están acabados en panelado MDF gris oscuro, en cambio la encimera de la cocina y las repisas están acabadas con un revestimiento gresite amarillo.
Se instalan las piezas del baño en porcelana blanca y los electrodomésticos de la cocina.
Se finalizan con la instalación de la grifería cromada, la iluminación, el revestimiento en espejo del baño, etc.
Vista frontal de la cocina.
Vista lateral, zona de armarios.
Vista posterior, acceso al baño.
···
Créditos · Credits
·
Reforma de una vivienda en el Barrio Gótico de Barcelona | ARQUITECTURA-G
·

Proyecto y Dirección de Obra · Design and constraction managemet:
·
Estructura · Structure:
·
Constructora · Contractor:
Construccions Rodriguez
·
Promotor · Client:
Privado · Private
·
Fotografías · Pictures:






