Reconversión Edificio de Oficinas en apartamentos Turísticos, Barcelona.
···
Documentación técnica · Technical documentation
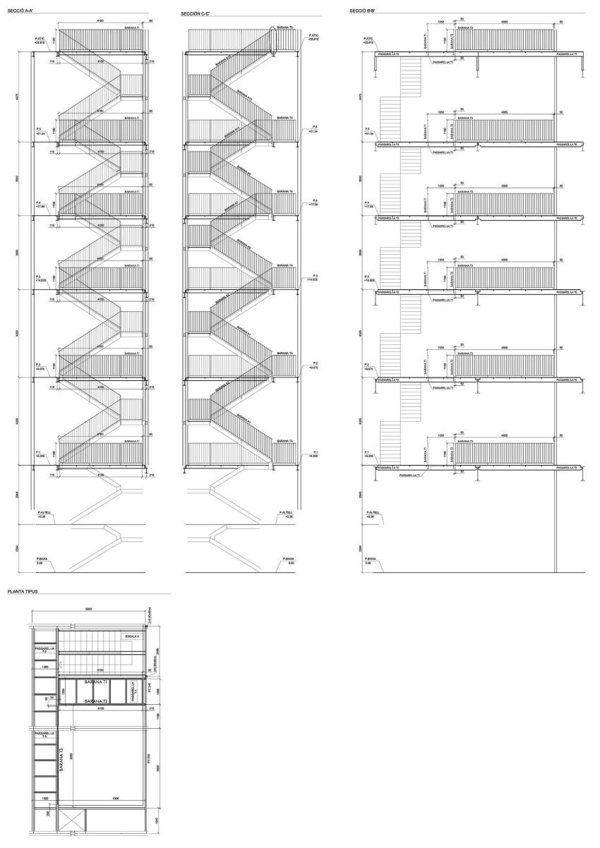
Planta y sección detalle escalera.
···
Proceso de construcción · Construction process
Estado inicial de la reconversión de las oficinas. Plantas diáfanas, techos registrables con perfileria vista, pilares forrados, pavimentos deteriorados, etc.
Retirada y derribo de techos, instalaciones y suelos. Descubrir los forjados y la estructura metálica; pilares y jácenas.
Apuntalar y reforzar la estructura existente. Especialmente los forjados para garantizar su estabilidad. Se empieza por abrir manualmente los forjados para realizar el hueco de la escalera.
Trabajos en cubierta. Mediante un corte longitudinal en cubierta se introduce el nuevo entramado de vigas que soportarán la estructura del lucernario.
Una vez consolidada la estructura del lucernario se cubre con una chapa grecada provisional para proteger el hueco de las inclemencias meteorologicas.
Derribo con medios mecánicos del hueco del patio y el núcleo de la escalera. Se mantiene el entramado estructural de pilares y jácenas para incorporarlo al diseño final de la escalera.
Se recrece parte de los forjados para adecuarse a las necesidades del proyecto. Este recrecido se realiza con un forjado colaborante; forjado mixto realizado con chapa grecada y hormigón armado.
Montaje de los rellanos y tramos de escalera metálicos realizados en taller.
Los tramos de la escalera se van soldando uno a uno al entramado de conforman las nuevas jácenas y las jácenas existentes. El peldañeado de la escalera también es metálico y está realizado mediante chapa plegada con acabado antideslizante tipo lágrima o cacahuete.
Vista del desarrollo de la escalera. Las pasarelas están realizadas mediante forjados colaborantes.
Las barandillas viene montadas previamente de taller en módulos numerados, realizadas con pletinas y barras metálicas. Durante el proceso de monje se van soldando a la estructura principal. En los tramos de las pasarelas, las barandillas están soldadas a la cara superior, en cambio, en el tramo de escaleras están soldadas lateralmente al perfil estructura.
Protección de la escalera al fuego mediante pintura ignífuga y acabado final pintado en color oscuro.
Por la cara inferior de las pasarelas están las instalaciones, estas quedan ocultas por cajones registrables. La dimensión de estos cajones está asociada al grosor de las jácenas existentes. Por la parte superior, las pasarelas está acabadas con un pavimento industrial adherido antideslizante en color rojo como contrapunto al acabado general del conjunto en color negro de la escalera, las barandillas y la estructura.
Vista de la escalera en la planta superior. El lucernario está finalizado en vidrio dejando pasar la iluminación natural al patio de la escalera.
Vistas del patio de la escalera.
···
Créditos · Credits
·
Reconversión Edificio de Oficinas en Apartamentos Turísticos | Borrell/Jover Arquitectos
·

Proyecto y Dirección de Obra · Design and constraction managemet:
·
Dirección de Ejecución · Constraction supervision:
Rafael Belloto
·
Estructura · Structure:
·
Instalaciones · Technical facilities:
PROEN Projectes Enginyeria, S.L.
·
Constructora · Contractor:
Contratación fraccionada
·
Promotor · Client:
Privado · Private
·
Fotografías · Pictures:
