Vivienda unifamiliar en Fonolleres, Girona
···
Documentación técnica · Technical documentation
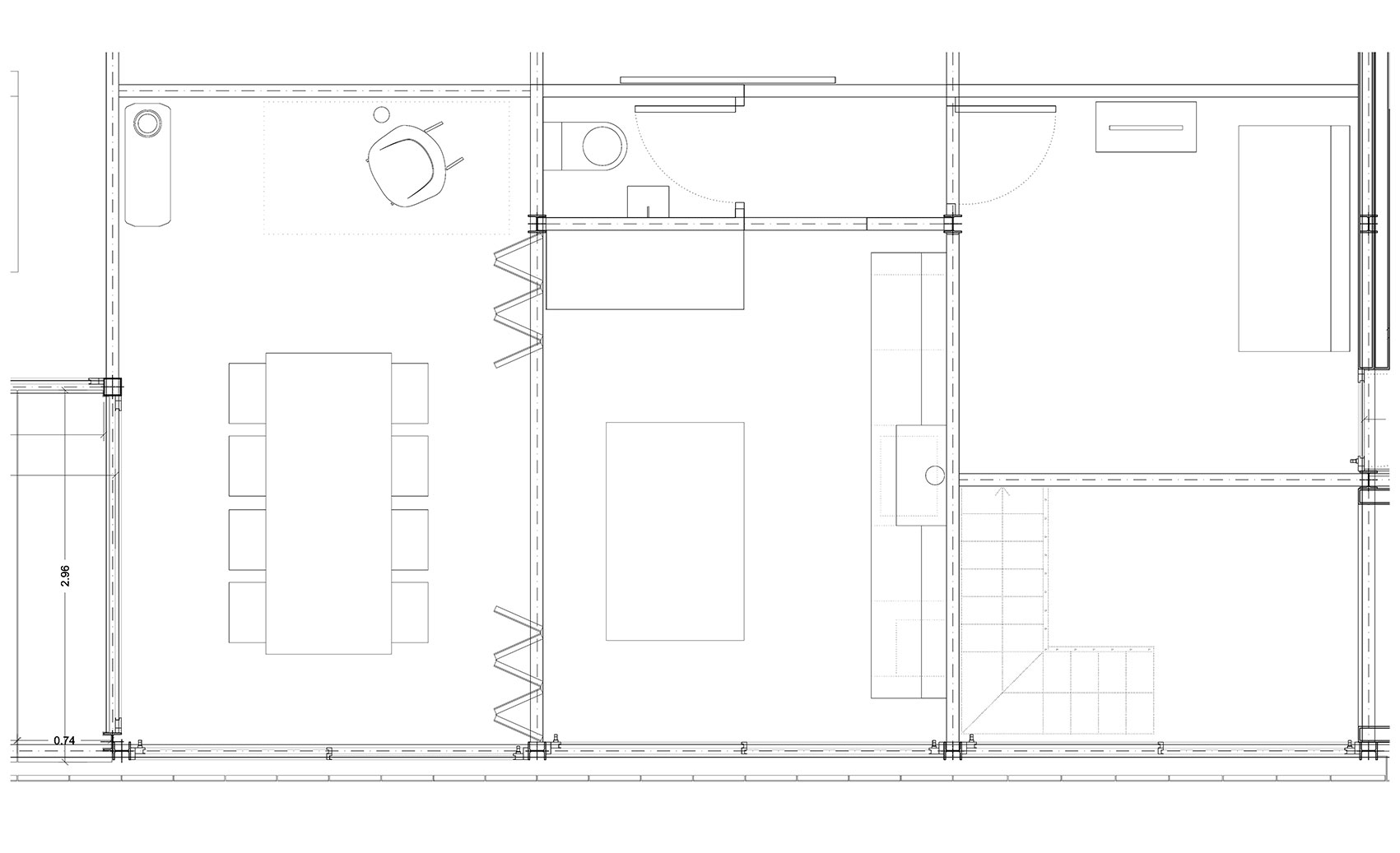
Planta baja. Distribución de los porticones.
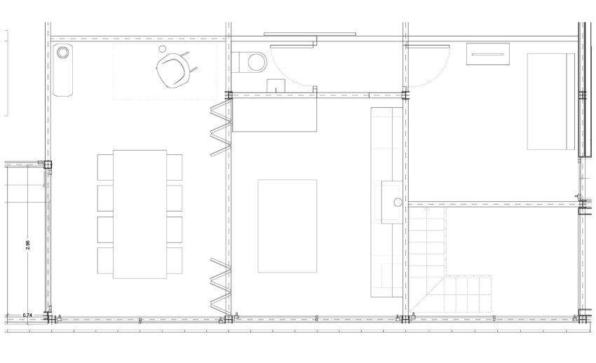
Alzado y replanteo de los porticones.
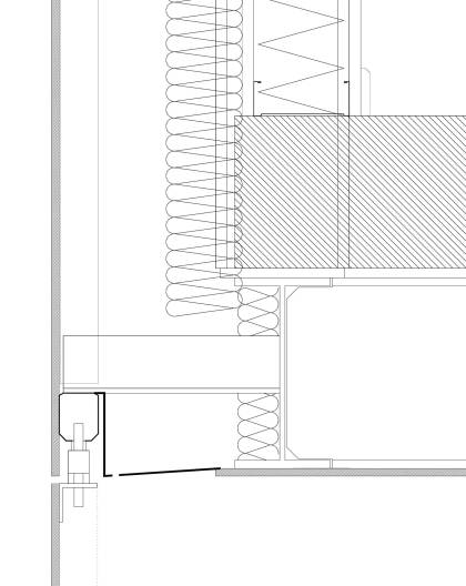
Detalle sección transversal de la guía y fijación de los porticones.
···
Proceso de construcción · Construction process
Alzado frontal. En el canto de la estructura del forjado se situa la guía de los porticones. Esta guía está fijada al perfil de fachada que separa planta baja de planta primera.
Detalle de la fijación de la guía a la estructura metálica mediante perfiles en «T» invertida de acero para pintar soldados a la estructura principal.
La guía queda oculta con la segunda piel exterior que conforma la fachada de la planta superior y a su vez, los módulos de los porticones mantienen el ritmo del despiece de la fachada.
Los porticones están formados por un marco perimetral de acero para pintar realizado mediante perfiles en «L». Al marco se atornillan las lamas de madera en plano, dejando una junta de separación entre ellas, esta junta estará corrida para todos los porticones de fachada. La madera utilizada es de pino con tratamiento incoloro en autoclave.
Suministro y colocación en la guía de los marcos de los porticones. Estos marcos vienen de taller con una barra intermedia de seguridad para evitar las deformaciones durante el transporte.
Detalle del pasador y vistas en escorzo de la disposición de las lamas planas de madera a junta corrida con los porticones cerrados. Alternancia del orden de las bisagras según el pliegue del porticón al abrirse.
···
Créditos · Credits
·
Vivienda unifamiliar en Fonelleres | Borrell/Jover Arquitectos
·
Proyecto y Dirección de Obra · Design and constraction managemet:

·
Estructura · Structure:
·
Instalaciones · Technical facilities:
·
Constructora · Contractor:
·
Promotor · Client:
Privado · Private
·
Fotografías · Pictures:
