CAP Dr Pujol i Capsada, el Prat del Llobregat, Barcelona.
···
Documentación técnica · Technical documentation
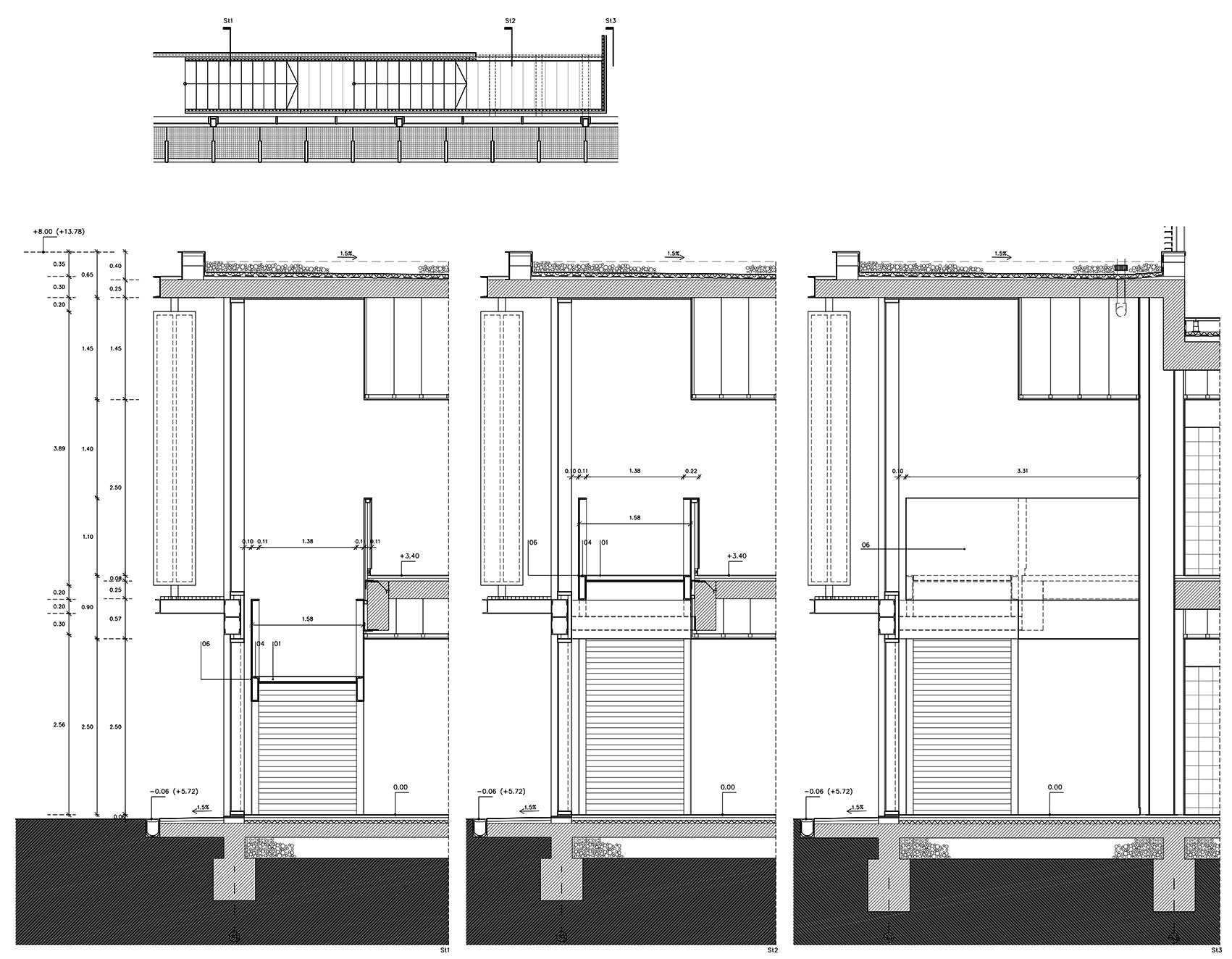
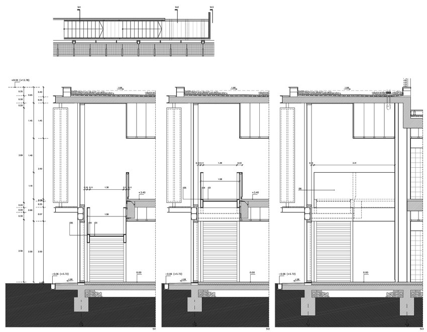
Alzado y sección longitudinal.
···
Proceso de construcción · Construction process
La estructura de la escalera es metálica, de acero para pintar. Está fabricada previamente en taller en un único tramo. En obra se simplemente hay que colocarla en la posición prevista.
La escalera se sitúa en una posición más elevada respecto el forjado en previsión de la cota del pavimento final. La estructura de la escalera está formada por 2 UPN 350 laterales y pletinas horizontales para los escalones de 15mm de espesor.
La barandilla está realizada mediante pletinas de 40mm de anchura y 10mm de espesor separadas 100mm entre ellas. Está fabricada en un único tramo en taller y soldada en obra a la estructura lateral de la escalera, pletina a pletina. Para mantener la distancia de separación hay una barra provisional soldada en la parte inferior que luego hay que retirar.
Protección de la escalera al fuego mediante pintura ignífuga.
Acabado pintado de las partes metálicas de la escalera.
Los peldaños son de una pieza de piedra caliza de medidas 150x32x7cm con un rehundido en la parte central inferior para que encaje la pletina de 15mm de la estructura metálica donde queda fijado el escalón con resina epoxi.
Sensación de transparencia y ligereza al subir y opacidad al bajar.
Vistas del arranque y rellano de la escalera.
Vista posterior de la escalera.
···
Créditos · Credits
·
CAP Dr. Pujol i Capsada | BCQ Arquitectura Barcelona
·

Proyecto y Dirección de Obra · Design and constraction managemet:
·
Dirección de Ejecución · Constraction supervision:
·
Estructura · Structure:
Eskubi-Turró Arquitectes S.L.P.
·
Instalaciones · Technical facilities:
·
Constructora · Contractor:
·
Promotor · Client:
·
Fotografías · Pictures:
© Andreas Kammermeier | BCQ arquitectura barcelona




