Casal avis, Horta-Guinardó, Barcelona.
···
Documentación técnica · Technical documentation
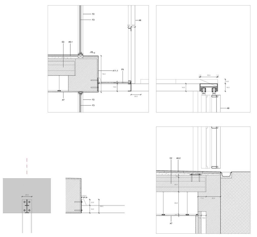
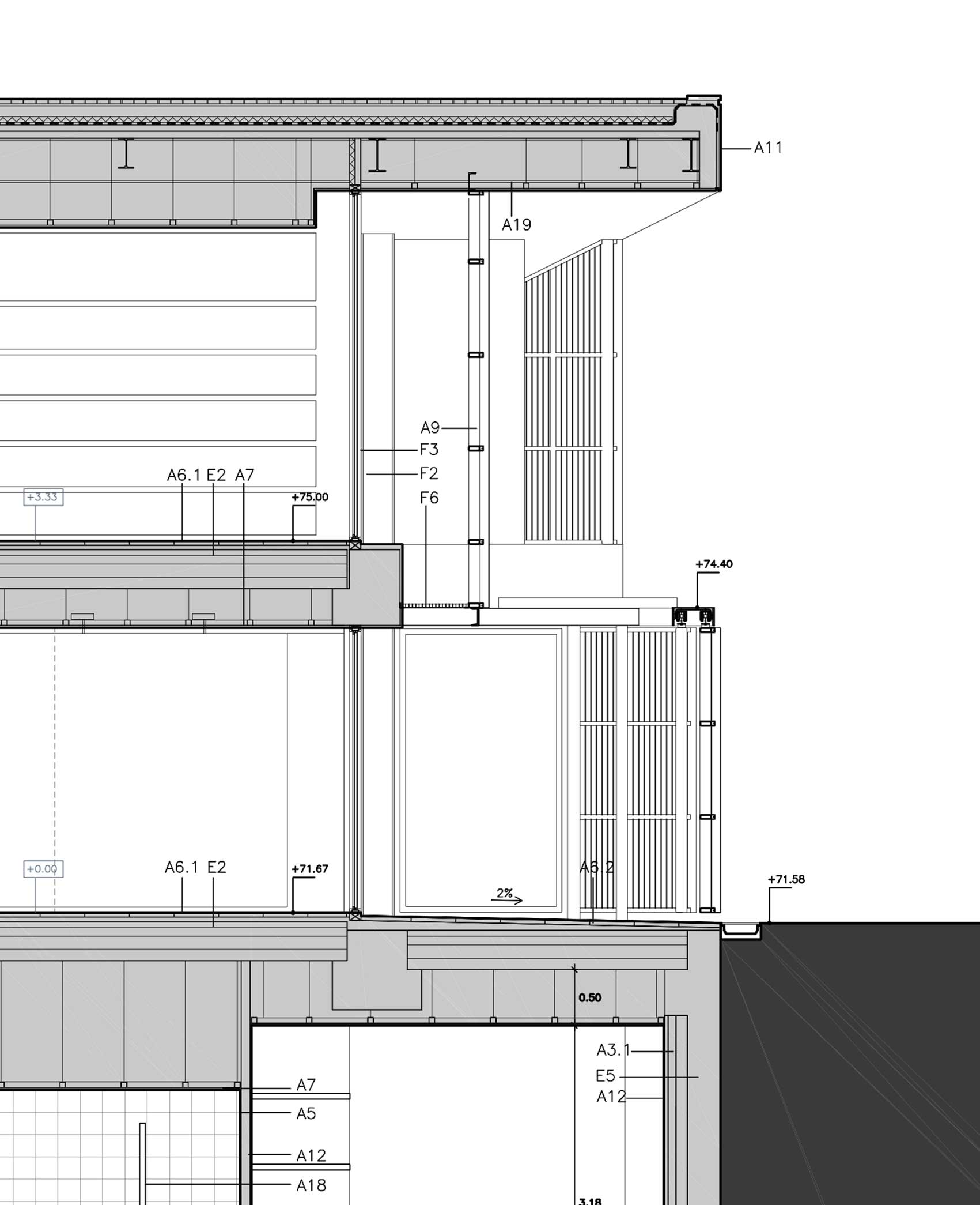
Sección transversal de la fachada del parque.
Detalle de la barandilla de la terraza en el porche.
···
Proceso de construcción · Construction process
Pilares de fachada de acero y cubierta se realizada con un forjado colaborante. La estructura metálica se protege al fuego con perlita vermiculita proyectada.
Colocación de las carpinterías fijadas a estructura de cubierta mediante tirantes y flejes, de tal forma que no afecte a la previsión de los falsos techos. En el pavimento en cambio, las carpinterías de aluminio se fijan directamente sobre el pavimento interior de terratzo.
Montaje de la estructura del falso techo del porche. Este es de placas de cartón yeso hidrófugo, ya que tiene que aguantar la humedad exterior.
Acristalamiento y enlucido de los cantos de la cubierta y los testeros.
Impermeabilización y pavimentación de la terraza del porche, con especial atención en los pies de la barandilla. La impermeabilización sube hasta sobre pasar el pavimento unos 15cm. El pavimento exterior es de piedra artificial de dimensiones 60x40x4cm.
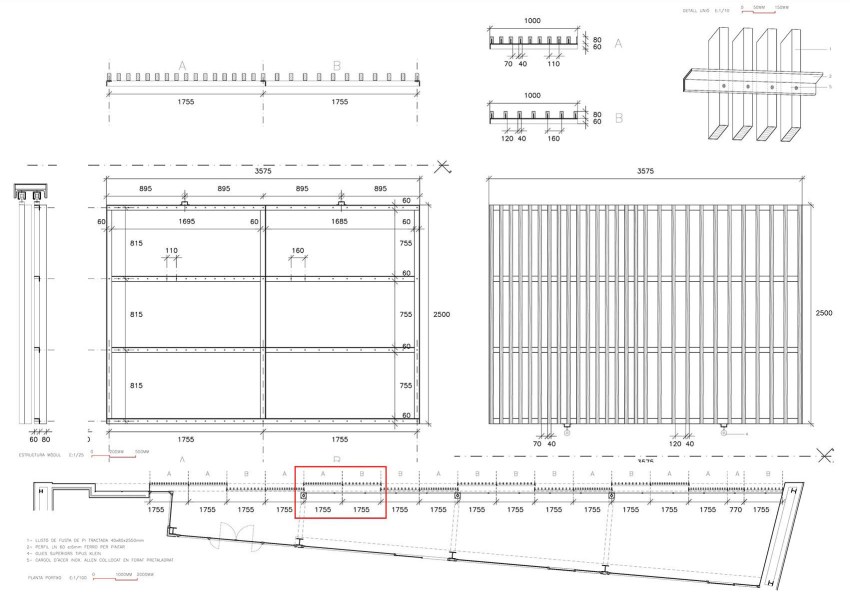
Prototipo de los módulos de lamas de madera. Se realiza una estructura tubular de acero galvanizado en caliente que luego irá fijada a la estructura principal del edificio. Estos módulos tienen pestañas donde las lamas que se fijaran mediante tornillos específicos para madera. Los listones de madera que forman las lamas son de pino tratado al autoclave. En la imagen se puede observar distintas pruebas del tratamiento de la madera; autoclave (la más verdosa) o con aceites naturales (la más clara).
Montaje y fijación de los paneles de acero galvanizado de los módulos fijos de la planta primera. La colocación de las lamas de madera en obra se realizan una a una y durante el proceso se tuvo encuenta la selección de cada lama según los nudos naturales de la madera y la inclinación de la cubierta.
Colocación de los paneles móviles en las guías motorizadas. Estos módulos son móviles para poder cerrar el casal fuera del horario público. Cuando están abiertos se agrupan en un extremo de la terraza permitiendo abrir vistas del interior del edificio al parque. La barandilla de la terraza también es transparente para poder mantener estas vistas, y está formada por vidrio laminado 6+6 y un pasamanos ancho que permite apoyarse. Este pasamanos está realizado en chapa plegada de acero inoxidable de 2mm de espesor.
Espacio interior de la terraza del porche.
Vista desde el parque.
···
Créditos · Credits
·
Casal avis Horta-Guinardó | BCQ arquitectura barcelona
·

Proyecto y Dirección de Obra · Design and constraction managemet:
·
Estructura · Structure:
Jordi Granada
·
Instalaciones · Technical facilities:
Taller d’Enginyeria Ambiental S.L.
·
Constructora · Contractor:
·
Promotor · Client:
Ajuntament de Barcelona, Districte Horta – Guinardó
·
Fotografías · Pictures:
© Carles Climent | BCQ Arquitectura Barcelona






