CAP Dr Pujol i Capsada, el Prat del Llobregat, Barcelona.
···
Documentación técnica · Technical documentation
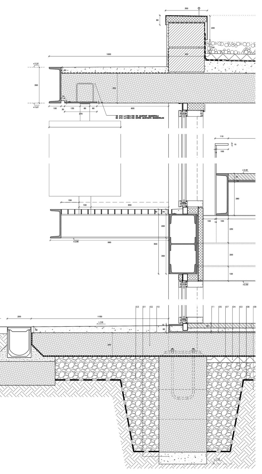
Sección detalle tipo de fachada.
Detalle en planta de los pilares.
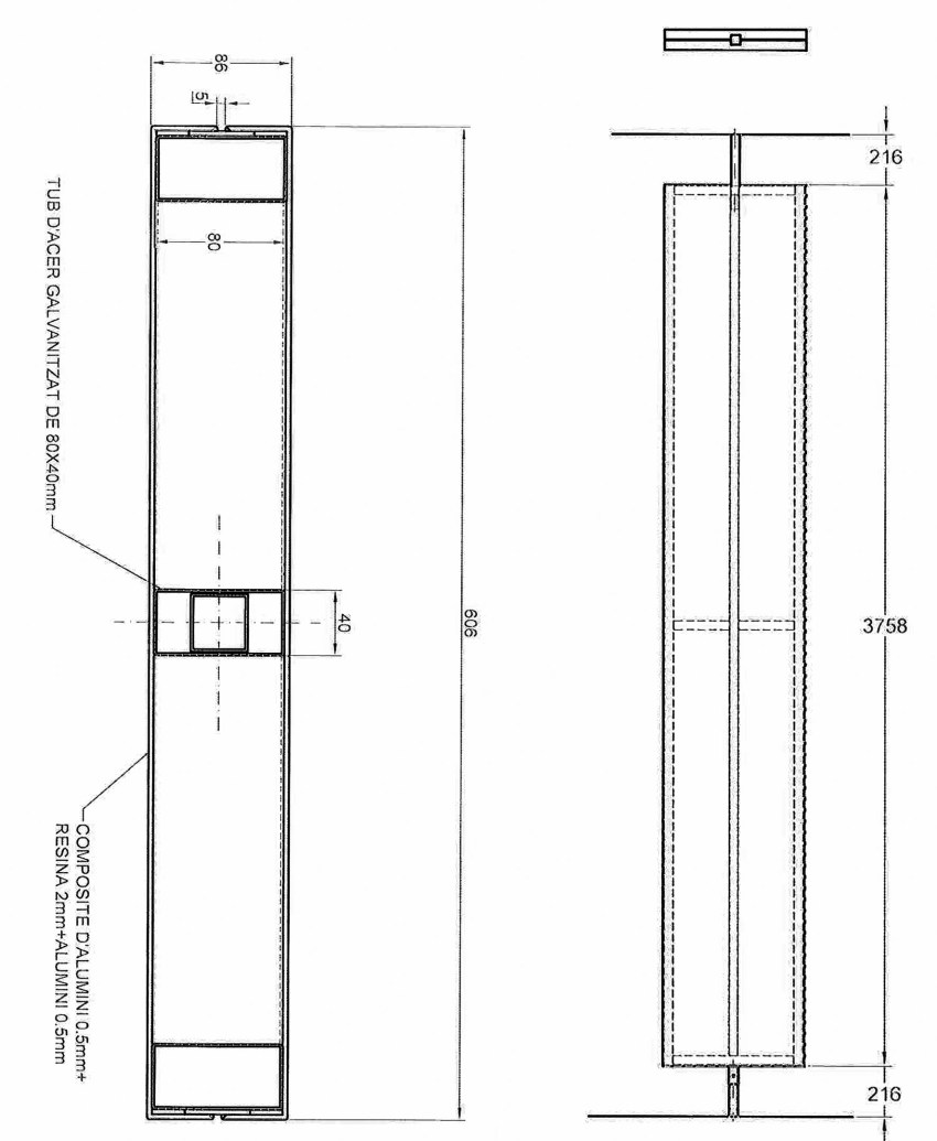
Planos de fabricación de las lamas de aluminio.
···
Proceso de construcción · Construction process
Línea estructural de pilares metálicos de fachada formada por 2 UPN soldadas por las alas y luego montar la cimbra para poder encofrar en altura el forjado de hormigón de cubierta que formará el doble espacio interior.
Retirar la cimbra. Soldar una viga-cajón formada por 2 UPN, 1 IPE y 2 pletinas, de forma que garantice una sección apta a torsión.
En la viga-cajón soldar en voladizo una segunda estructura metálica formada por perfiles IPE 120 triangulados mediante un tirante, en este caso un tubo y rematado el extremo con un perfil UPN.
Proteger la estructura metálica mediante una imprimación y la aplicación de una pintura intumescente resistencia al fuego. Una vez protegida la estructura, montar el muro cortina de aluminio con rotura de puente térmico y doble acristalamiento.
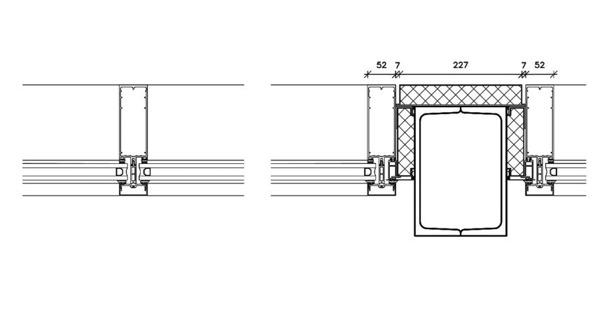
Muestra a escala de la lama vertical con pliegue intermedio y aprobación del sistema de sujeción de las lamas a la estructura mediante machihembrado de 2 tubos, de esta forma se consigue regular la altura de las lamas.
Fijación de las lamas a la estructura y colocación del entramado metálico para paso del personal de mantenimiento.
Imágenes del conjunto de lamas.
···
Créditos · Credits
·
CAP Dr. Pujol i Capsada | BCQ arquitectura barcelona
·

Proyecto y Dirección de Obra · Design and constraction managemet:
·
Dirección de Ejecución · Constraction supervision:
·
Estructura · Structure:
Eskubi-Turró Arquitectes S.L.P.
·
Instalaciones · Technical facilities:
·
Constructora · Contractor:
·
Promotor · Client:
·
Fotografías · Pictures:
© Andreas Kammermeier | BCQ arquitectura barcelona



