12 viviendas Av. Caritg 96 Badalona, Barcelona.
···
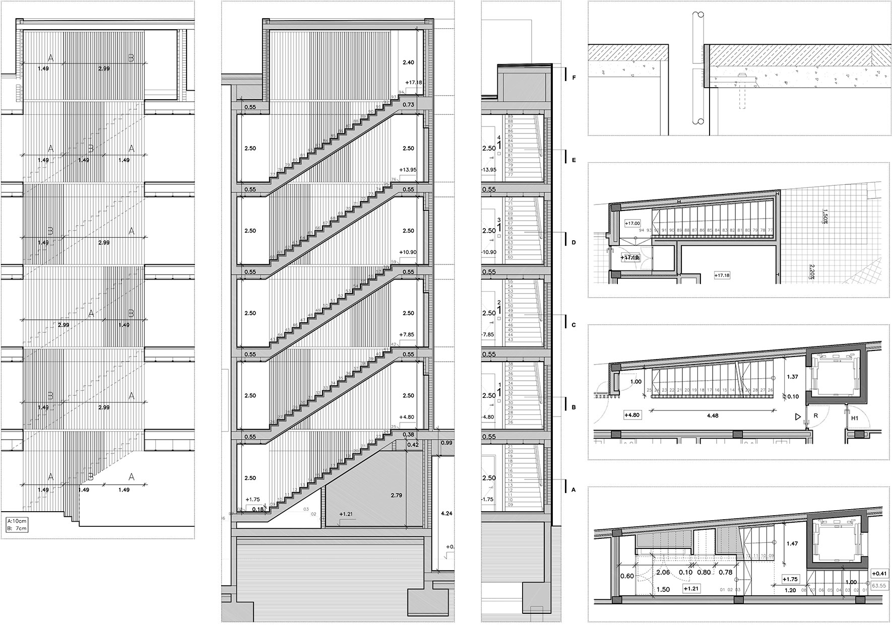
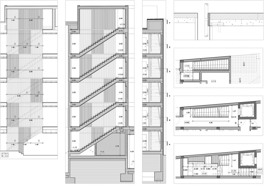
Documentación técnica · Technical documentation
···
Proceso de construcción · Construction process
Construcción de la escalera en con preparación de los peldaños incluidos.
Apuntalar la escalera hasta que el hormigón haya fraguado.
Verificación y replanteo del ojo de la escalera.
Suministro y colocación de los peldaños de una pieza de terratzo. En este caso el zócalo es del mismo terrazo.
Aplicación de la pasta para juntas en el pavimento de terratzo. Colocación de pletina de acero para pintar en el lateral del canto del forjado del rellano de la escalera.
Soldar las barras macizas de la barandilla central al canto de la pletina de acero para pintar situada en el lateral del forjado del rellano de la escalera.
Barandilla lateral formada por plancha de acero doblada en forma de Z y soldada un tubo de 40mm de diámetro. Todo para pintar.
Transparencia de la barandilla central de barrotes.
Vista del rellano de la escalera.
···
Créditos · Credits
·
12 viviendas Av. Caritg | BCQ arquitectura barcelona
·

Proyecto y Dirección de Obra · Design and constraction management:
·
Dirección de Ejecución · Constraction supervision:
Maurici Díaz
·
Estructura · Structure:
Jordi granada
·
Instalaciones · Technical facilites:
·
Constructora · Contractor:
·
Promotor · Client:
·
Fotografías · Pictures:
© Ariel Ramírez | BCQ arquitectura barcelona



