12 Viviendas Av. Caritg 96 Badalona, Barcelona.
···
Documentación técnica · Technical documentation
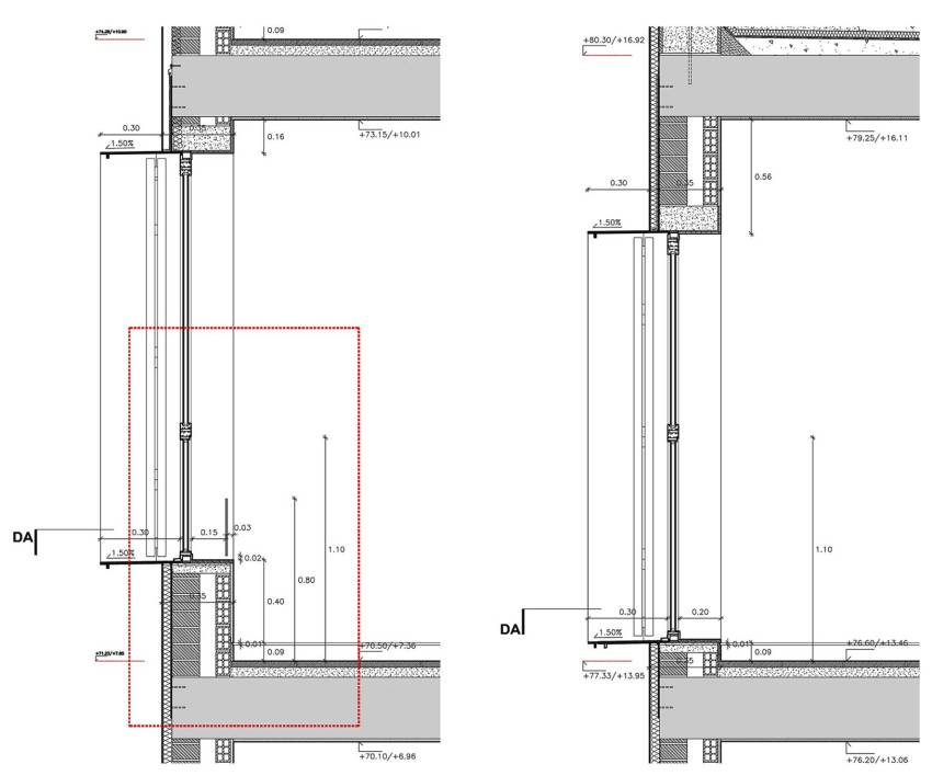
Sección detalle de los 2 tipos de ventana.
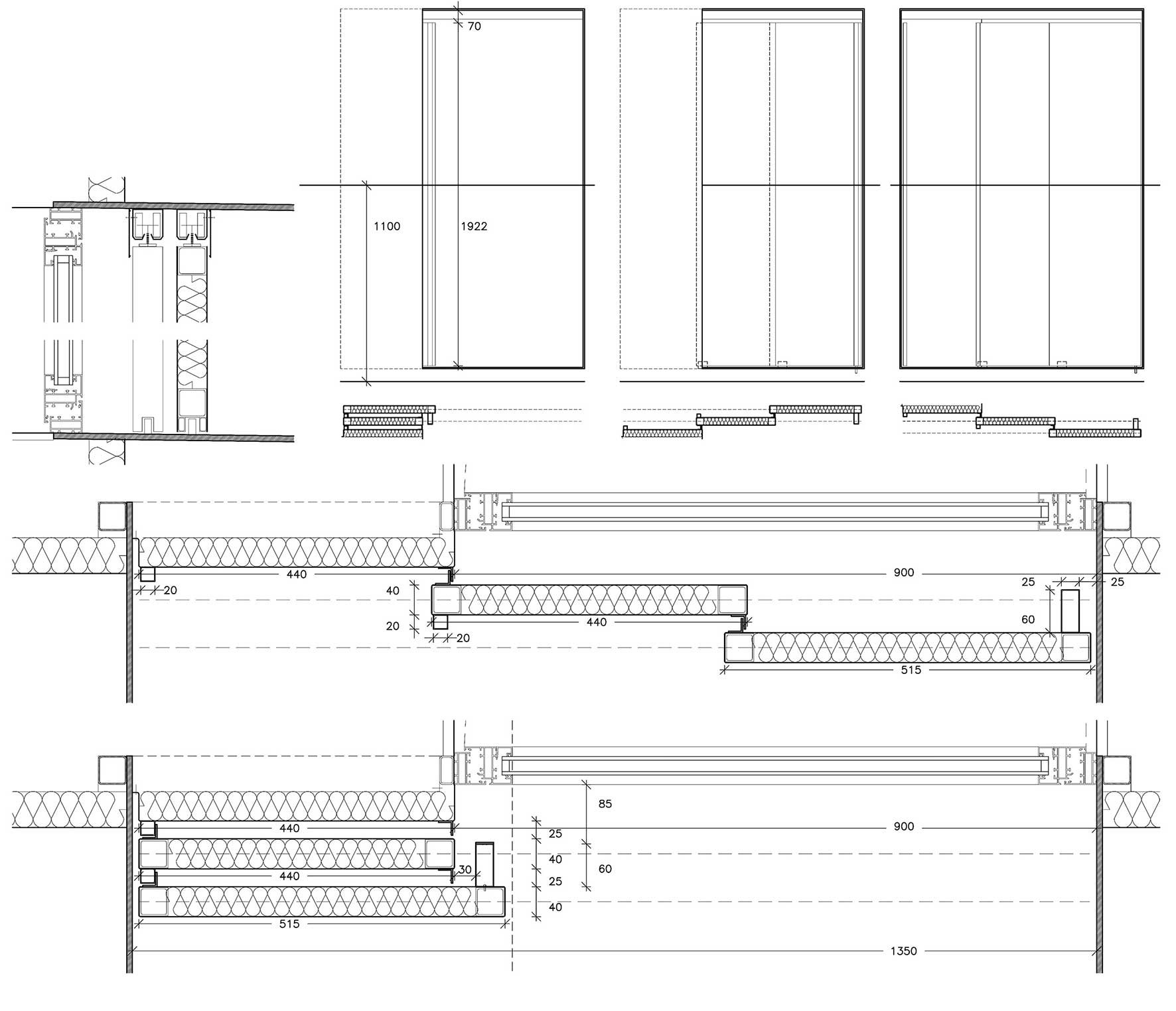
Detalle del porticón de aluminio.
···
Proceso de construcción · Construction process
Colocación de los marcos fabricados en taller formados por pletinas de 8mm de espesor de acero para pintar.
Fijación de los marcos a los forjados de hormigón mediante estructura de tubos de sección cuadrada.
Proteger la estructura metálica mediante una imprimación y aplicación de pintura anticorrosiva.
Muestra y colocación de carpintería de aluminio con rotura de puente térmico y doble acristalamiento.
Vistas de las diferentes posiciones en altura de las ventanas.
Muchas veces la ventana relaciona 2 espacios diferentes de la propia vivienda o de diferentes viviendas.
Vistas del porción para oscurecer las habitaciones.
···
Créditos · Credits
·
12 viviendas A. Caritg | BCQ arquitectura barcelona
·

Proyecto y Dirección de Obra · Design and constraction management:
·
Dirección de Ejecución · Constraction supervision:
Maurici Díaz
·
Estructura · Structure:
Jordi granada
·
Instalaciones · Technical facilities:
·
Constructora · Contractor:
·
Promotor · Client:
·
Fotografías · Pictures:
© Ariel Ramírez | BCQ arquitectura barcelona


