Mercat del Encants, Barcelona.
···
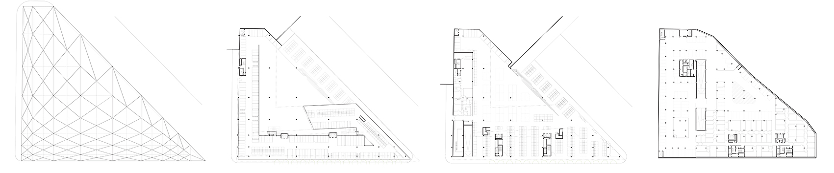
Documentación técnica · Technical documentation
El proyecto forma parte de una de las más importantes operaciones urbanas de Barcelona en este momento: la remodelación de la plaza de las Glorias y su entorno. Els Encants de Barcelona es un Mercado de las Pulgas, tradicionalmente organizado de manera informal al aire libre. Ha estado ocupando, desde 1929, una parte importante del ámbito de la futura plaza.
El encargo presentaba un doble desafío: por una parte era deseable mantener su carácter tradicional y por otro, el nuevo mercado sería la primera pieza de la reformulación del ámbito y debería contribuir a su vocación de fuerte centralidad.
La solución es un proyecto híbrido que, sin ser un edificio, proporciona una fuerte volumetría de entidad suficiente para iniciar la formalización de la gran plaza pública. Es un espacio que monumentaliza lo popular, aporta una fuerte presencia física en la ciudad y confiere forma urbana, pero al mismo tiempo transmite la experiencia de lo abierto manteniendo la sensación tradicional del comercio de calle.
Una gran cubierta suspendida a modo de palio, a casi 25 metros de altura, confiere al mercado reconocibilidad como equipamiento urbano y proporciona una cierta protección frente a la lluvia y la radiación solar sin perder el ambiente de espacio abierto. Se organiza en bandas de ancho variable correspondientes a crujías de pilares cuya separación responde a la presencia de las calles. La máxima altura y luces corresponden con el área de la subasta, verdadero corazón del mercado.
Su cara inferior genera un techo de planos quebrados. Un acabado pulido y dorado aligera el techo y lo convierte en un mecanismo de reflexión caleidoscópica de la ciudad hacia el interior del Mercado y viceversa. Un guiño desenfadado sobre la singular oferta del mercado.
···
Proceso de construcción · Construction process
Estructura principal portante de la cubierta. Vigas en celosía formadas por perfiles de acero laminado soldados.

Subestructura de fijación del falso techo formada por perfiles abiertos de acero galvanizado.
Los elementos del falso techo fueron especialmente desarrollados para este proyecto. Se trata de paneles de aluminio en composición de “nido de abeja”, con un lámina inferior adherida de acero inoxidable coloreado y de acabado pulido espejo. La viabilidad de este novedoso producto fue comprobada mediante una intensa batería de ensayos que demostró su durabilidad y fiabilidad de comportamiento.
Los paneles van fijados a una subestructura de acero galvanizado mediante anclajes ocultos. Su montaje se realizó parcialmente con la estructura posicionada en una altura baja, facilitando una ejecución más rápida y segura.
Posteriormente, los diferentes tramos de cubierta fueron izados mediante gatos hidráulicos hasta su altura definitiva.
Cada módulo estructural tendrá inclinaciones diferentes para reflejar la luz, la atmósfera y el paisaje.
···
Créditos · Credits
·
Mercat dels Encants | b720 arquitectos
·
Proyecto y Dirección de Obra · Design and Constraction management:
·
Dirección de ejecución · Constractor supervision:
Projectes Facilities & Management
·
Estructura · Structure:
BOMA
·
Instalaciones · Technical facilities:
·
Constructora · Contractor:
·
Promotor · Cliente:
BIMSA (Barcelona d’Infraestructures Municipals)
·
Fotografías · Pictures:
© Rafael Vargas | Toni Coll | b720 arquitectes














