CAP Dr Pujol i Capsada, el Prat del Llobregat, Barcelona.
···
Documentación técnica · Technical documentation
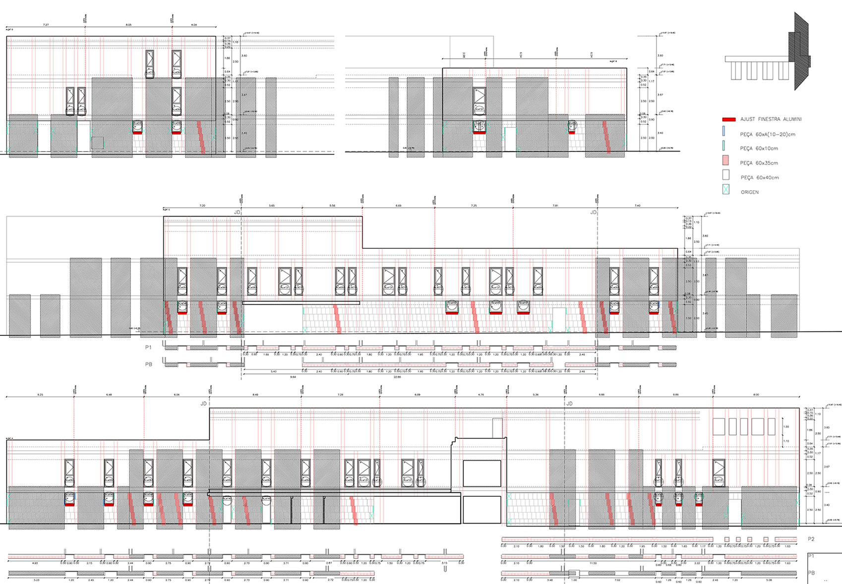
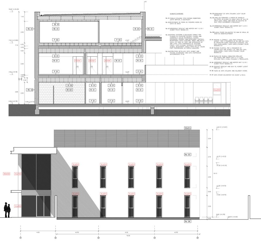
Detalle sección transversal fachada interior patios.
···
Proceso de construcción · Construction process
Estado prévio a la rehabilitación.
La fachada está formada por paneles prefabricados de hormigón. Éstos paneles son estructurales y no se pueden derribar. Ha sido necesario adaptar la distribución interior al ritmo de paneles existentes.
Trabajos de derribo de todos elementos no estructurales. Únicamente se mantienen los forjados y los paneles de hormigón prefabricado de fachada.
Mediante una hoja de ladrillo cerámico enrasado a la cara exterior de los paneles de hormigón prefabricado de fachada se cierran los huecos y se ordena la nueva fachada.
Las aberturas para las ventanas se enmarcan con piezas de hormigón polimérico de 2-3cm de espesor. Posteriormente se montan las carpinterías de aluminio con rotura de puente térmico y doble hoja de vidrio.
Detalle tipo del sistema de envolvente de fachada. La ventaja de este sistema es que incorpora el aislamiento térmico.
1.Fijación / 2.Aislamiento térmico / 3.Capa con base de armadura (mortero de armadura + malla de fibra de vidrio) / 4.Capa de acabado.
Colocación de las placas de poliestireno expandido para el aislamiento térmico. Al situarse en el exterior simplifica la ejecución y elimina los puentes térmicos. El aislamiento se nivela con pasta de agarre para conseguir la planeidad y adaptarse a tolerancias de hasta 3cm. 
Una vez conseguida la planeidad de fachada, el aislamiento se fija mecánicamente mediante rosetones que garantizan su sujeción al soporte.
Aplicación de la armadura de mortero y la fibra de vidrio. Este proceso le confiere dureza y resistencia al paramento.
Una vez endurecido el paramento se aplica la pintura de acabado final. Para garantizar la buena uniformidad es conveniente realizar juntas de trabajo acordes a las jornadas de trabajo.
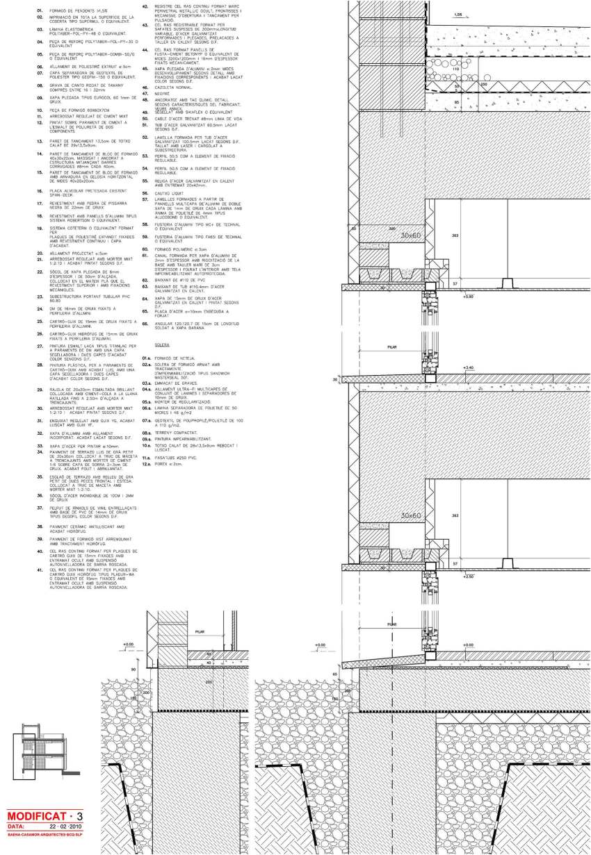
La coronación superior de la fachada se protege mediante un remate de chapa de acero galvanizado fijada mecánicamente que evita filtraciones de agua.
La planta baja de la fachada exterior se resuelve mediante un zócalo de piedra que garantiza mayor resistencia. Un pequeño angular metálico resuelve la transición y genera una linea de sombra.
Muestra de la losa de piedra basáltica para el zócalo de la fachada exterior.
Las medidas de las losas de basalto son de 60x40x2cm. Están colocadas a rompe-juntas, sobre una base de mortero cola.
Fachada exterior. Entrada a la zona de rehabilitación.
Vista al acceso de las ambulancias.
···
Créditos · Credits
·
CAP Dr. Pujol i Capsada | BCQ arquitectura barcelona
·

Proyecto y Dirección de Obra · Design and constraction managemet:
·
Dirección de Ejecución · Constraction supervision:
·
Estructura · Structure:
Eskubi-Turró Arquitectes S.L.P.
·
Instalaciones · Technical facilities:
·
Constructora · Contractor:
·
Promotor · Client:
·
Fotografías · Pictures:
© Andreas Kammermeier | BCQ arquitectura barcelona






