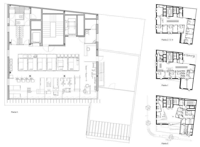
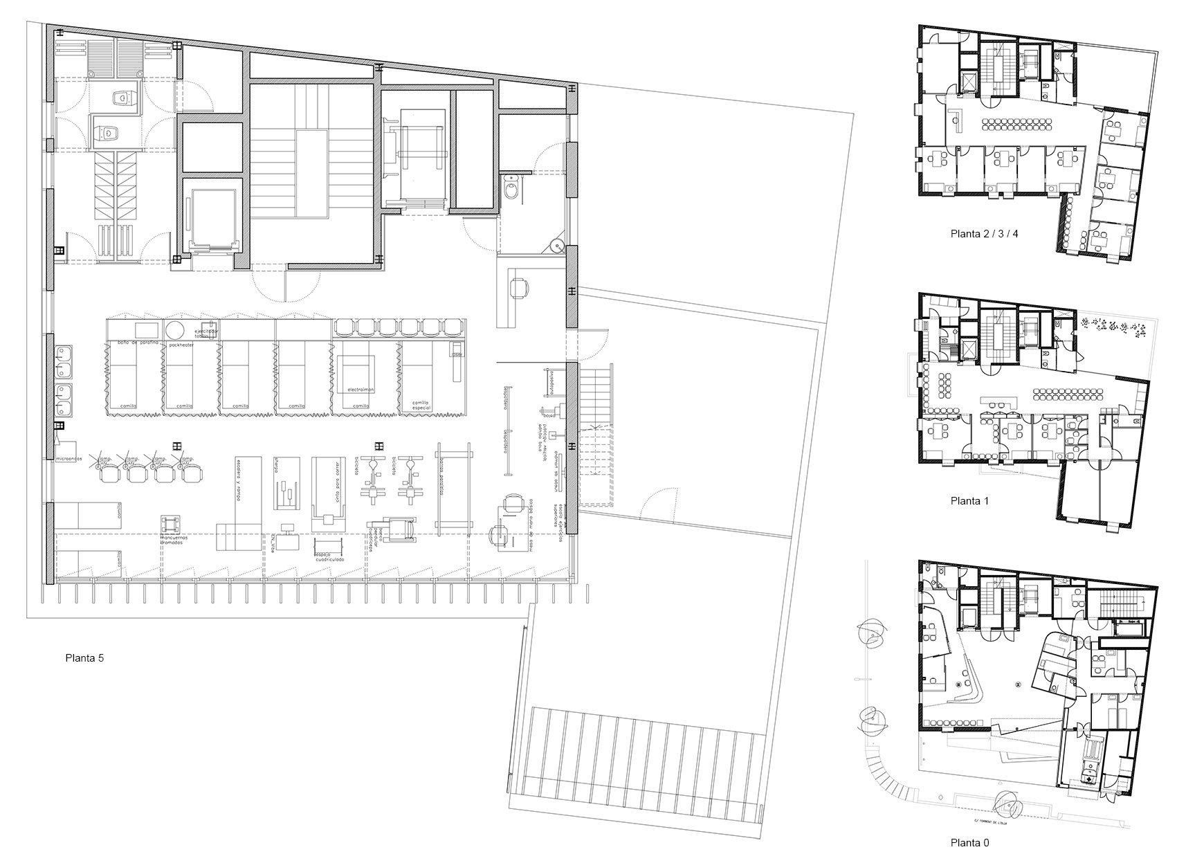
Clínica Olivé Gumà, Barcelona.
···
Documentación técnica · Technical documentation
La reforma y ampliación de esta clínica se afronta mediante una intervención plástica contundente para huir del recurso mimético en la solución. El uso del material corten y la volumetría aplicada en los módulos de las ventanas de la fachada, marcan el carácter del edificio en un contexto urbano denso y complejo.
···
Proceso de construcción · Construction process
La remonta de las 2 plantas se realiza con estructura ligera de forjados colaborantes y pilares metálicos.
La piel exterior está formada por lamas en forma de «L» realizadas en placas de acero corten de 8mm de espesor en taller y montadas una a una en obra.

Las lamas están fijadas al antepecho existente y al extremo de la nueva cubierta de la remonta mediante montantes estructurales de hierro de 100x60x6 situados en la cara interior de cada una de las lamas.
Ignifugación de la estructura metálica y montaje de la instalaciones.
Vista en detalle del extremo superior de las lamas. Se puede apreciar las distintas placas de 8mm de espesor de acero corten que forman la lama; los laterales sobresalen dejando rehundidas las placas intermedias, marcando las líneas de sobra y a su vez ocultando las soldaduras. Entre cada una de las lamas se encuentra un tubo soldado en obra que evita que las cabezas se desplacen y garantiza la rigidez del conjunto.

La fachada interior está formada por una carpintería de aluminio con rotura de puente térmico y vidrio laminado climalit. El contacto de esta piel interior transparente con la nueva cubierta que está retranqueada se produce mediante una tramo curvo.
Vista en detalle del encuentro entre los planos de las fachadas.
···
Créditos · Credits
·
Clinica Olivé Gumà, Barcelona | Octavio Mestre + Guim Costa
·
Proyecto y Dirección de Obra · Design and constraction managemet:
·
Dirección de Ejecución · Constraction supervision:
Pere Vilaginés
·
Estructura · Structure:
Eskubi-Turró Arquitectes S.L.P.
·
Instalaciones · Technical facilities:
·
Constructora · Contractor:
CONSTRUCCIONES RIERA
·
Promotor · Cliente:
·
Fotografías · Pictures:
© Lluís Casals | © Octavio Mestre










