Biblioteca Sant Gervasi-Joan Maragall.
···
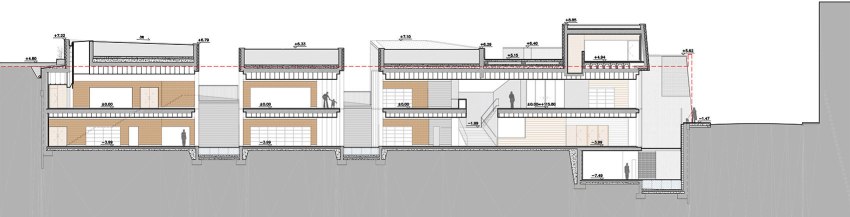
Documentación técnica · Technical documentation
Plantas interiores y cubierta.
Alzados y diagramas de árboles del jardín.
···
Proceso de construcción · Construction process

Antiguo jardín de Vil·la Florida.
La biblioteca se sitúa bajo el antiguo jardín de la Vil·la Florida. El desnivel entre el jardín y la calle permiten ubicar el acceso a la biblioteca de manera natural. La cubierta de la biblioteca se sitúa a nivel de la Vil·la Florida y prolonga el antiguo jardín consiguiendo que se extienda hasta la calle Sant Gervasi de Cassoles.
La estructura principal de la biblioteca está formada por muros de hormigón armado. En posiciones singulares se han introducido jácenas invertidas para resolver esfuerzos especiales, sobre todo en la cubierta jardín.
Una vez realizada la estructura general, se crean los grandes contenedores de tierras para la plantación de los árboles.
Recrecido de hormigón de pendientes la impermeabilización, lámina impermeabilizante. Prueba de impermeabilización.
Placas rígidas de aislante térmico, geotextil separador, capa de protección de cemento-mortero 10cm, lámina de polietileno de 2mm, lámina drenante de 6cm.
Lámina de polietileno 2mm, geotextil, machaca cerámica drenante y geotextil. En los puntos más bajos se dispone un relleno de gravas alrededor del tubo drenante de 15cm de diámetro.
Vista de la ejecución de las cubiertas antes de colocar la tierra vegetal.
En el antiguo jardín existían árboles que merecían su conservación, y por tanto se tuvieron que trasplantar a otras zonas del jardín de Vil·la Florida y que no quedasen afectados por las obras.
Una vez finalizados los trabajos de adecuación de las cubiertas se vuelven a re-plantar los árboles existentes y junto a los nuevos.
Se rellenan las cubiertas con tierra vegetal con capacidad drenante y un 12% de materia orgánica. En los puntos más desfavorables el grosor mínimo de tierras es de 50cm.
Se cubre la tierra con un geotextil anti-raíces y se realiza la instalación del sistema de riego por goteo.

Junto a los árboles también se realiza una plantación de plantas tapizantes y aromáticas.
···
Créditos · Credits
·
Biblioteca Joan Maragall | BCQ arquitectura barcelona
·

Proyecto y Dirección de Obra · Design and constraction managemet:
·
Dirección de ejecución · Constractor supervision:
IDP Ingenieria, Medio ambiente y Arquitectura
·
·
Estructura · Structure:
·
Instalaciones · Technical facilities:
·
Constructora · Contractor:
·
Promotor · Client:
Ajuntament de Barcelona | BIMSA-Barcelona d’Infraestructures Municipals
·
Fotografías · Pictures:
© Ariel Ramírez | © Jordi Sànchez | BCQ Arquitectura Barcelona




