Sede Mutua Madrileña, Barcelona.
···
Documentación técnica · Technical documentation
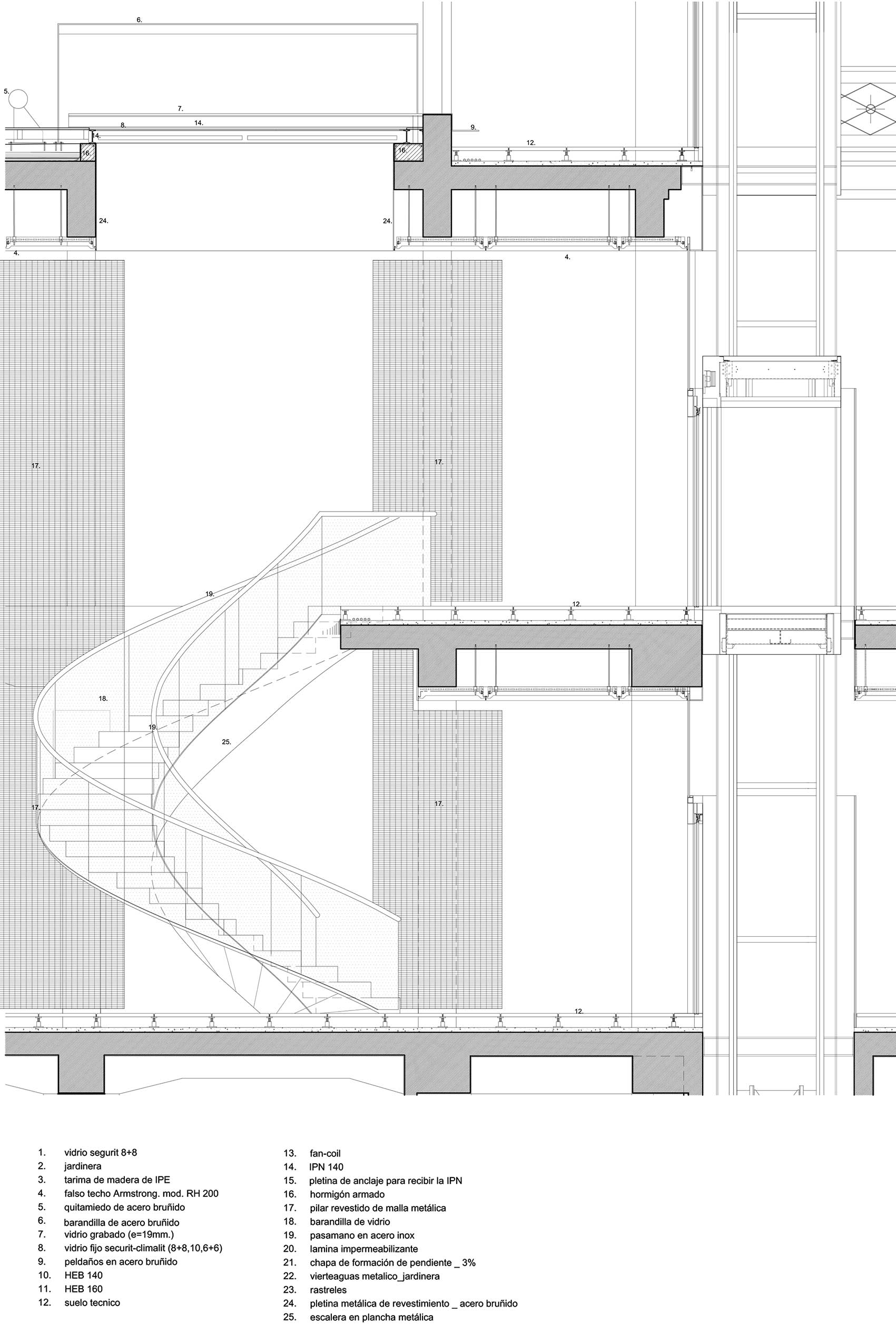
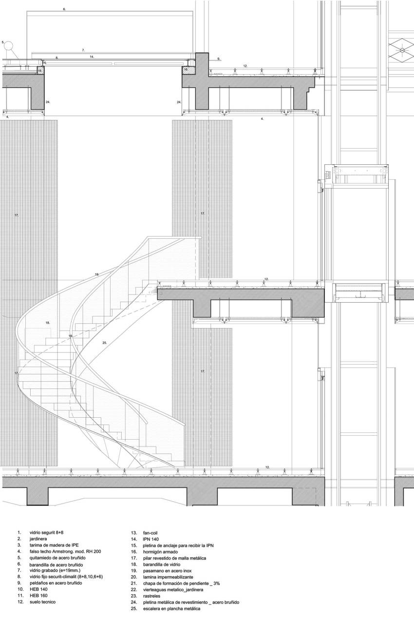
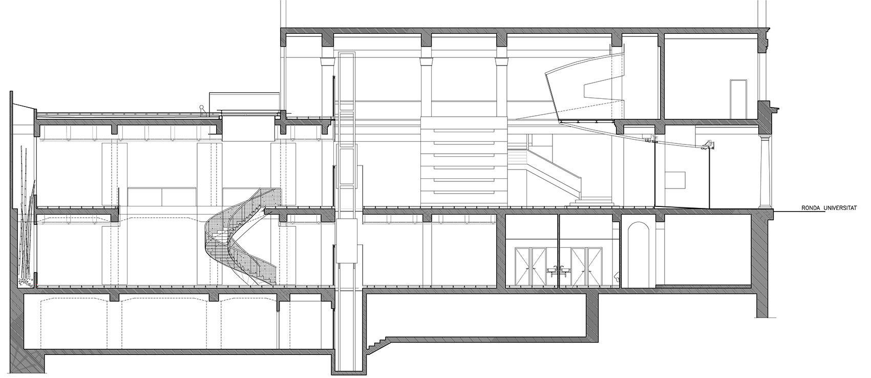
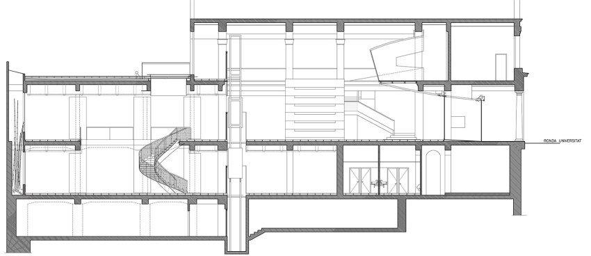
Plantas, alzados y sección transversal.
···
Proceso de construcción · Construction process
El cuerpo de la escalera está ejecutado en taller mediante planchas de acero negro para pintar. Estas planchas están recortadas en varias secciones, dobladas en radios concéntricos para conseguir la geometría circular, y finalmente soldadas entre ellas.
El montaje de la escalera en obra se realiza mediante soldadura “in situ” de los extremos superior e inferior a los forjados de planta.
La parte inferior de la escalera es vista, y refleja la geometría de los escalones. Todas las soldaduras están realizadas con preparación de cantos y posteriormente rebajadas mecánicamente mediante “la mola” (lijadora circular), de tal forma que no aparecen discontinuidades y las soldaduras se vuelven imperceptibles.
El lateral de la escalera está formado por 2 chapas de acero separadas entre ellas lo suficiente para permitir alojar la barandilla de vidrio.
En toda la escalera se realiza un tratamiento de imprimación y pintado ignífugo que garantiza la resistencia al fuego de la misma.
Montaje de los vidrios curvos que forman la barandilla alojándolos en el espacio interior de las 2 chapas laterales.
Vista superior de la escalera.
Los escalones están acabados en madera de tal forma que se mantiene la continuidad de pavimentos con el suelo técnico de las plantas.
El pasamanos de la barandilla está formado por un tubo de acero inoxidable situado en el canto superior del vidrio.
© Lluís Sans
···
Créditos · Credits
·
Sede Mutua Madrileña, Barcelona | Octavio Mestre
·
Proyecto y Dirección de Obra · Design and constraction managemet:
·
Dirección de Ejecución · Constraction supervision:
Marta Guillén
·
Estructura · Structure:
·
Instalaciones · Technical facilities:
·
Constructora · Contractor:
·
Promotor · Cliente:
·
Fotografías · Pictures:
© Lluís Sans | © Octavio Mestre







gran proyecto, muy buena explicación!