CEIP El Parc, Escuela primaria. El Prat del Llobregat, Barcelona.
···
Documentación técnica · Technical documentation
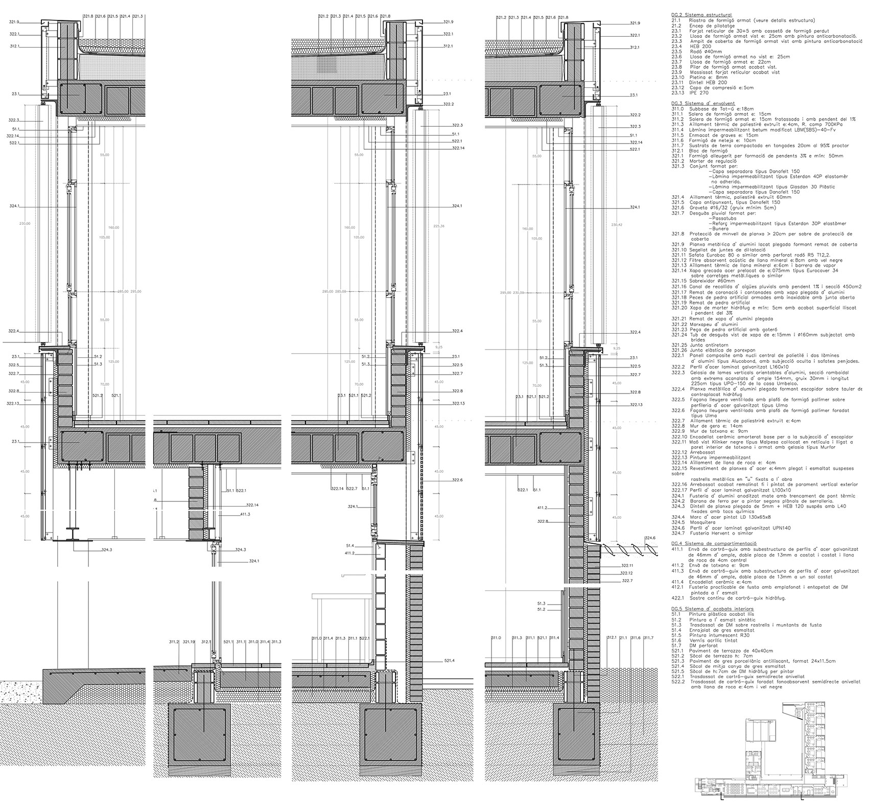
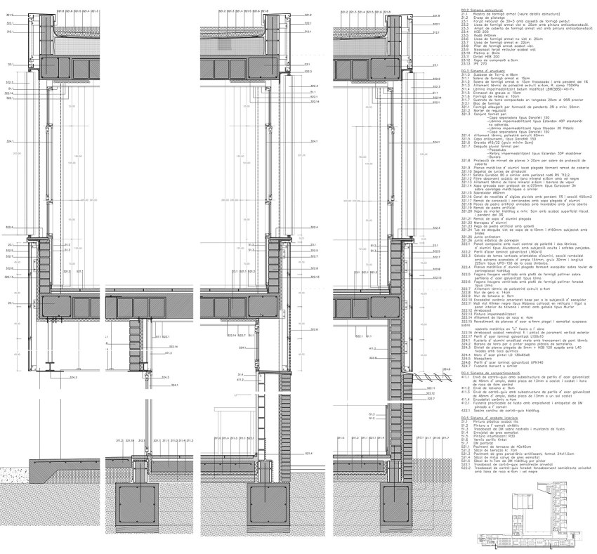
Fachada ventilada acabada con paneles de hormigón polímero sobre estructura d’acero galvanizado, con aislamiento de lana de roca. Hoja interior de ladrillo perforado de 14cm. En la cara interna se realiza una capa de pintura impermeabilizante. Las partes bajas de la fachada se resuelven con una doble hoja con cámara de aire sin ventilar; la hoja exterior es de ladrillo visto tipo klinker negro de Malpesa colocado en retícula y armado con celosia tipo Murfor, en la cara interior se le aplica un revoco donde posteriormente se fijará el aislamiento de poliestireno extruido de 4cm y la cámara de aire sin ventilar se cierra interiormente con ladrillo hueco de 9cm.
···
Proceso de construcción · Construction process
La estructura principal está formada por pilares de hormigón armado con luces máximas de 7,50m. y forjados reticulares de 30+5cm de canto con nervios «in situ» de 15cm de ancho y 85x85cm entre ejes. El hormigón utilizado para la estructura es HA-25. Una vez se ha finalizado los trabajos de estructura se ejecutan las primeras hiladas de bloque de hormigón para delimitar la cota y el perímetro de las fachadas.
La fachada en planta baja, está compuesta por una doble hoja formada por hiladas de ladrillo visto klinker negro tipo Malpesa armado con celosia tipo Murfor, revoco en la cara interior, aislante térmico de poliestireno extruido de 4cm. y hoja una interior de ladrillo hueco cerámico de 9cm.
Dintel del porche interior de acceso formado por plancha plegada de 5mm y HEB 120 suspendido con L40 fijado con tacos químicos.
Trasdosados de cartón yeso continuo hidrófugo en las zonas en contacto con el exterior y normal en el interior.
Pintura impermeabilizante y aislante térmico de lana de roca fijado sobre la hoja interior de la fachada de ladrillo perforado de 14cm.
Detalle de la fijación mecánica tipo rosetón del aislante al soporte vertical. Marco metálico para el hueco de las ventanas formado por perfil de acero laminado L160x10. donde se montarán la celosia de lamas verticales de aluminio y las ventanas.
Montaje de las ventanas de aluminio con rotura de puente térmico y acabado en aluminio anodizado.
Detalle del proceso del montaje de la estructura de acero galvanizado para la fijación de los paneles de hormigón polímero, con la suficiente separación entre el aislante y los paneles para conseguir la ventilación de la fachada.
2 tipos de paneles de hormigón polímero; liso y ranurado.
En planta baja, la fachada a calle se desdobla con patios que iluminan y dan privacidad a las zonas administrativas, la biblioteca y el comedor. En este caso se diferencian 2 tipos de fachada; Fachada de ladrillo klinker negro, cerrada y opaca al exterior, y fachada de entramado metálico, abierta y pública. En ambos casos para controlar la incidencia de luz solar, (orientación sur) se utilizan las mismas celosias de lamas de aluminio en posición horizontal.
Montaje de las celosias de lamas de aluminio para el control solar en las aulas.
Los dinteles de hormigón se aplacan con paneles de composite con núcleo central de polietileno y 2 láminas de aluminio con fijaciones ocultas. La coronación superior de la fachada se realiza en plancha metálica de aluminio lacada y con un desarrollo en 4 pliegues.
Vistas de la fachada interior.
···
Créditos · Credits
·
CEIP El Parc. Escuela primaria | Forgas Arquitectes
·

Proyecto y Dirección de Obra · Design and constraction managemet:
·
Dirección de Ejecución · Constraction supervision:
Joan Ramón Soldevilla
·
Estructura · Structure:
·
Instalaciones · Technical facilities:
·
Constructora · Contractor:
·
Promotor · Cliente:
Infraestructures.cat | Ajuntament del Prat del Llobregat
·
Fotografías · Pictures:
© Filippo Poli | Forgas Arquitectes





